Logements collectifs
Cressy












Logements collectifsCressy
Au-delà de l’impérieuse nécessité d’apporter la réponse la plus juste aux questions posées par nos mandataires, nous, architectes, nous devons d’établir une réflexion sur l’état de la question, un état des choses qui dépasse les contingences, cependant réelles et incontournables, de l’économie et de la rentabilité d’un investissement.
Cet état de la question, en matière de logement, implique de toute évidence un regard sur l’évolution des modes de vie et des mœurs.
La construction locative est, on le sait, la plus réfractaire à ces évolutions et la moins ouverte aux nouveaux modes de bâtir et aux innovations technologiques. Ceci, pour une raison simple : l’habiter est synonyme d’habitude, de réflexes, de continuités. Changer ces habitudes est périlleux, non pas pour l’habitant, mais pour celui qui propose autre chose.
On doit louer, et l’on ne peut se permettre de ne pas trouver preneur. En conséquence, il faut plaire, mais cette séduction n’est pas - ou plus - seulement liée aux capacités financières du futur habitant. Il faut ajouter à ce facteur de nouveaux besoins en matière d’espace et de lumière.
Nous ne pouvons plus, à l’aube du XXIᵉ siècle et pour vivre au XXIᵉ siècle, proposer des espaces exigus et aveugles, des espaces tant décriés depuis près de quarante ans. Le seul prétexte de l’économie ne suffit plus à légitimer la perpétuation de ce mode de faire, toujours plus en décalage avec les modes de vie.
C’est pourquoi il nous est apparu ici comme un devoir de rechercher, au-delà de la meilleure adéquation possible aux conditions que le site requiert, au-delà d’un respect scrupuleux des éléments programmatiques, un mode d’habiter qui, sans vouloir bouleverser tous les schémas (pour les raisons précédemment évoquées), tente une autre définition des différents espaces du logement.
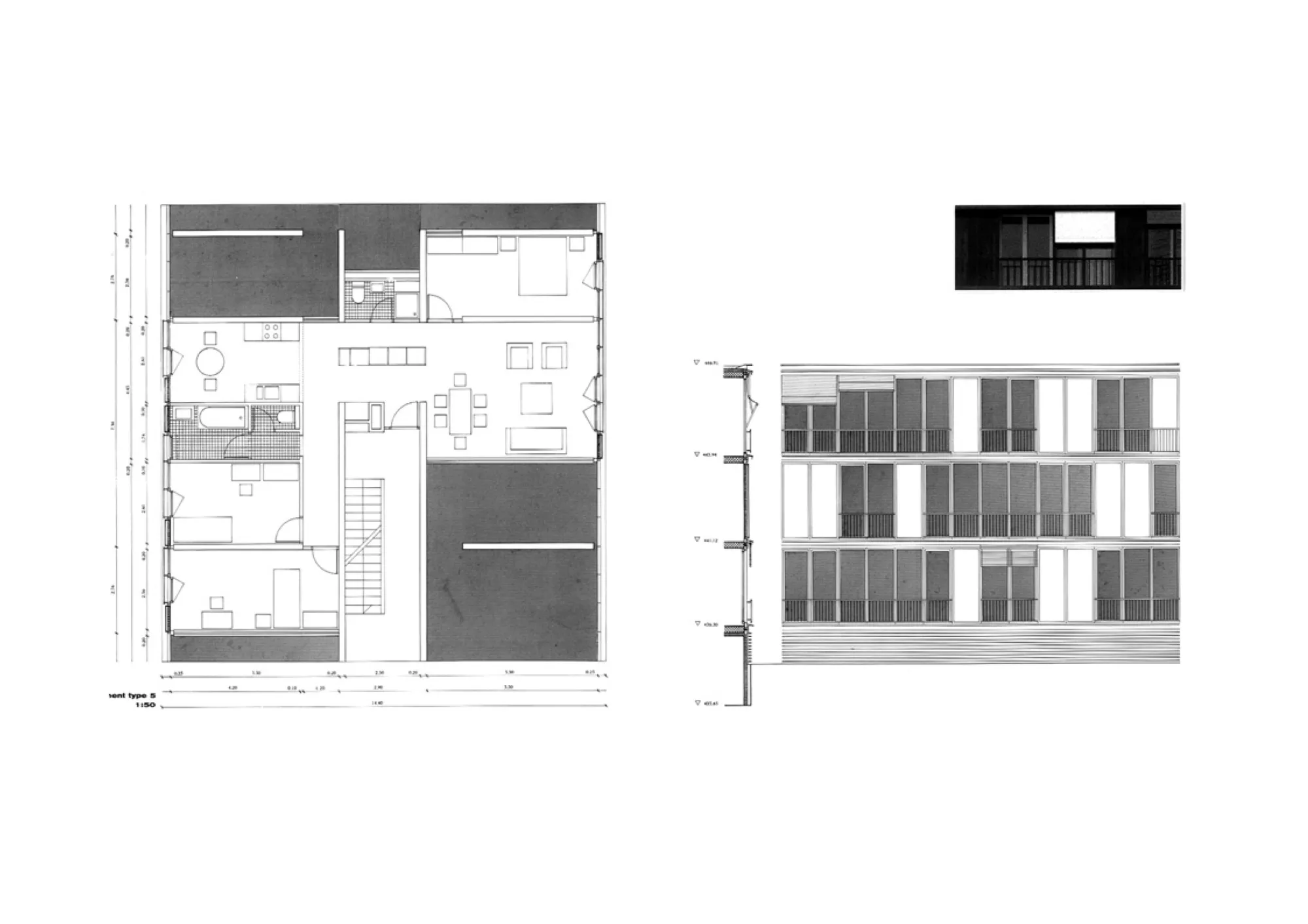
Faire de chacun des espaces une pièce à part entière, c’est-à-dire une pièce dans laquelle on vit, en pleine lumière et en contact permanent avec un paysage : un paysage entre ville et campagne. Chaque pièce est une chambre avec vue, chaque vue se fait au travers d’une totale ouverture, et non d’un simple trou dans un mur, comme on le ferait en ville. Chaque ouverture est de toute hauteur, et associe ainsi extérieur et intérieur.
Ce gommage progressif de la notion de « services » à l’intérieur du logement renforce l’idée d’une absence, à terme (au prix d’autres évolutions), de la qualification nominative de chacune des pièces, pour engendrer mutations et permutations.
Qualifier l’espace par ses dimensions et la lumière qu’il reçoit, et ainsi faire avancer l’état de la question.
avec Pierre Bouvier
Beyond the imperative necessity of providing the most appropriate response to the questions posed by our clients, we, as architects, must establish a reflection on the state of the question – a state of affairs that goes beyond the nonetheless real and unavoidable contingencies of economy and investment profitability.
This state of the question, in terms of housing, obviously involves a look at the evolution of lifestyles and social practices.
Rental construction is, as we know, the most resistant to these evolutions and the least open to new ways of building and technological innovations. This, for a simple reason: dwelling is synonymous with habit, reflexes, continuity. Changing these habits is risky – not for the inhabitant, but for the one proposing something else.
One must rent, and one cannot afford not to find a tenant. As a result, one must appeal – but this appeal is not, or no longer, solely linked to the financial means of the future inhabitant. To this factor must be added new needs in terms of space and light.
We can no longer, at the dawn of the 21st century, and in order to live in the 21st century, propose cramped and blind spaces – spaces so criticized for nearly forty years. The sole pretext of economy is no longer sufficient to justify the perpetuation of this approach, increasingly out of sync with contemporary lifestyles.
This is why it appeared to us here as our duty to search – beyond the best possible adaptation to the conditions required by the site, beyond a scrupulous respect for programmatic elements – for a way of inhabiting that, without seeking to overturn all existing models (for the reasons mentioned earlier), attempts a new definition of the different spaces of housing.
To make each space a room in its own right – that is, a room in which one lives, in full daylight and in constant connection with a landscape: a landscape between city and countryside. Each room is a room with a view; each view occurs through a total opening, not merely through a hole in a wall, as would be done in the city. Each opening spans the full height and thus connects interior and exterior.
This progressive erasure of the notion of "service areas" within the dwelling reinforces the idea of a future absence (at the cost of other evolutions) of the nominal qualification of each room, allowing for mutations and permutations.
To qualify space by its dimensions and the light it receives, and thereby advance the state of the question.
with Pierre Bouvier