Villa
La Capite-Genève












VillaLa Capite-GenèvePrivé
Projet lauréat
Projet d’une villa
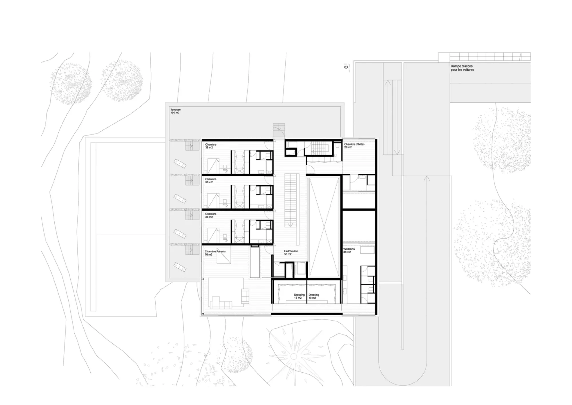
Parallèlement à une rampe d’accès accompagnée de miroirs fragmentés, le hall est un haut volume de verre, captant, le jour, une lumière naturelle conduite et amplifiée par un mur d’eau et diffusant, la nuit, un éclairage artificiel modulable. Sans rupture visuelle entre l’extérieur et l’intérieur, installé sur un nouveau sol, tour à tour espace privé et espace de représentation, le séjour est une plateforme libre et modulable, en communication avec les espaces de loisirs par un sol coulissant, autorisant tous les possibles et les métamorphoses.
L’espace culinaire, organisé sur les principes du designer Maarten Van Severen et du chef étoilé Stefan Boxy, offre, à l’image des rites établis pour un véritable restaurant, une succession de séquences, de la préparation à la réalisation, et propose la dégustation des mets dans une position privilégiée. La chambre de maître est un volume en porte-à-faux, possédant son propre spa ; c’est un objectif qui capte la vue et la lumière du ciel pour dormir « à la belle étoile », et se complète d’un observatoire-bibliothèque, une pièce secrète. Les junior-suites sont ouvertes sur des jardins privés, alors que la chambre d’hôte, prolongée par une terrasse et éclairée par un patio, prend la mesure d’une vue privilégiée sur le lac.
Omniprésente, l’eau relie les différents espaces, guide les parcours, efface les limites des bassins ; elle est l’élément de référence d’un monde récréatif combinant les fonctions de club, de lounge-bar et de spa. Le projet utilise l’eau selon ses propriétés physiques et physiologiques. Une pellicule d’eau prismatique est ainsi utilisée en toiture pour ses propriétés thermiques : sa capacité à absorber les infrarouges de la lumière solaire permet d’éviter l’échauffement des surfaces vitrées en été. Au sol, la présence de l’eau fait varier le taux d’humidité de l’air. Imaginé par l’architecte-paysagiste américaine Andrea Cochran, le parc est pensé comme un jardin, assurant la production des essences aromatiques nécessaires à la cuisine, cultivant les herbes médicinales pour le spa, et préservant les végétaux rares.
Winning project
Villa project
Parallel to an access ramp lined with fragmented mirrors, the hall is a tall glass volume that captures natural light during the day, guided and amplified by a water wall, and diffuses at night a modulated artificial lighting. With no visual break between exterior and interior, laid upon a new floor, serving both as a private space and a place of representation, the living room is a free and flexible platform. It connects with the leisure areas via a sliding floor, allowing for endless possibilities and transformations.
The kitchen space, organized according to the principles of designer Maarten Van Severen and Michelin-starred chef Stefan Boxy, offers much like the rituals of a true restaurant a sequence of stages, from preparation to execution, and proposes the tasting of dishes in a privileged setting. The master bedroom is a cantilevered volume, complete with its own spa; it is a space oriented to capture views and skylight for sleeping “under the stars”, and includes a library-observatory, a secret room. The junior suites open onto private gardens, while the guest bedroom, extended by a terrace and lit by a patio, offers a privileged view over the lake.
Omnipresent, water links the various spaces, guides circulation, blurs the edges of the pools, and serves as the defining element of a recreational world combining the functions of a club, lounge bar, and spa. The project employs water according to its physical and physiological properties. A prismatic film of water is used on the roof for its thermal properties: its ability to absorb infrared solar radiation prevents overheating of glazed surfaces in summer. At ground level, the presence of water helps regulate air humidity. Designed by American landscape architect Andrea Cochran, the park is conceived as a garden, providing aromatic plants for the kitchen, medicinal herbs for the spa, and preserving rare vegetation.