Delegation Suisse auprès de l'OCDE
PARIS












Delegation Suisse auprès de l'OCDEPARISOCDE
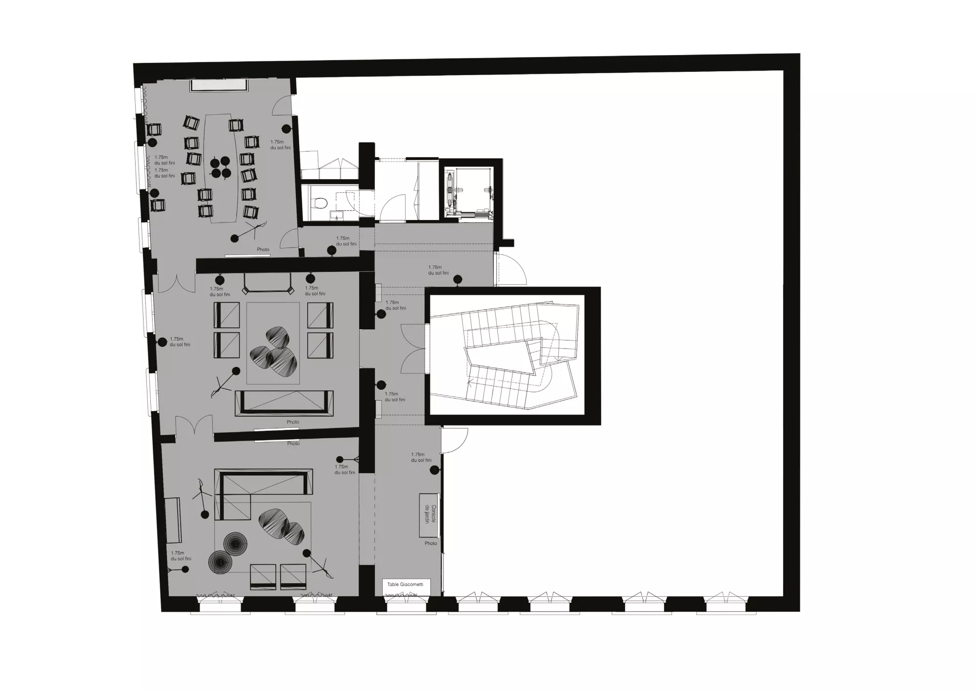
S’inscrire dans un processus de continuité et intégrer l’éphémère d’un décor. Une entrée doit être une invitation. Le visiteur, pris par la main, doit être conduit jusqu’au seuil véritable, celui qui ouvre sur le hall. La cour, espace de transition entre rue et immeuble, doit accueillir, accompagner le mouvement, diriger les pas.
Un premier effet, un effet de surprise, prolonge la cour au travers d’un miroir d’inox poli, inspiré du travail de l’artiste grison Not Vital. Inséré dans le lierre qui couvre le mur, précédé par un long banc de la même matière, derrière lequel s’est glissé un revêtement de céramique semi-brillant.
Le miroir, légèrement flou, renvoie l’image de la façade et projette celle-ci sur la rue. C’est l’invitation, l’appel. Une porte s’ouvre.
Un long piédestal, pièce horizontale retrouvant la nature du miroir extérieur, porte et supporte le mobilier de Diego Giacometti. Sculpteur de meubles, comme le nomma le critique d’art Gilles Kraemer, Diego Giacometti joua continuellement sur la transparence de l’espace. Le piédestal protège le mobilier, le tient à distance et offre, par reflet sur sa surface polie, la lecture de sa construction. Face à lui, un banc de cuir, simplement posé, pour attendre confortablement.
Au-dessus, deux espaces de réception, divisés, subdivisés, qui doivent retrouver dans la diversité de leur aménagement, l’unité attendue. Comprendre les apports, les touches ajoutées, tant en mobilier, qu’en luminaires ou en jeux de surfaces peintes, comme des éléments soulignant ou contrastant la délicatesse du travail de Diego Giacometti.
Associer Gio Ponti, Milan, et Hannes Wettstein, né au Tessin, n’est pas innocent. Cette conjonction géographique fut celle de l’univers culturel premier de Giacometti. Retrouver ainsi, en combinaison et en opposition, des meubles plus puissants exprimant prioritairement le confort. Des lampes graciles, aux pattes d’insectes, ou de simples sphères, pour une lumière suspendue, qui ne s’impose pas à l’espace mais lui offre toute sa lecture.
Aux meubles, il faut alors un cadre, un fond de scène. Les murs et les plafonds doivent redonner aux moulures leur vraie définition, celle du jeu d’ombres, en utilisant dans la peinture l’argile et sa profondeur, et en unifiant les surfaces dans une même tonalité sur chacun des supports, ce qui n’interdit en rien la différenciation de l’horizontal et du vertical.
Les étoffes jouent un rôle important dans le ressenti d’une atmosphère. Tapis et rideaux, une nouvelle fois, associent le nord de l’Italie et la Suisse alémanique, et déploient des matières nobles : le lin, la soie, la laine.
La Suisse, les Grisons, devraient garder cependant une présence identifiable, une trace, par une représentation d’ensemble, que pourraient compléter et enrichir des photographies d’art, faisant appel à de jeunes ou plus confirmés photographes helvétiques. Révélant, en contraste avec l’environnement parisien des espaces investis, la force des montagnes, l’univers premier des Giacometti...
Project Team : Sara Sampaio
To engage in a process of continuity and integrate the ephemeral nature of a setting. An entrance must be an invitation. The visitor, gently guided, must be led to the true threshold, the one that opens onto the hall. The courtyard, a transitional space between street and building, must welcome, accompany movement, and direct one's steps.
A first impression, a moment of surprise, extends the courtyard through a polished stainless steel mirror inspired by the work of the Grisons-born artist Not Vital. Set within the ivy that covers the wall, preceded by a long bench made of the same material, behind which lies a semi-gloss ceramic cladding.
The mirror, slightly blurred, reflects the image of the façade and projects it outward to the street. It is the invitation, the call. A door opens.
A long pedestal, a horizontal piece echoing the material of the exterior mirror, carries and supports the furniture by Diego Giacometti. A sculptor of furniture, as art critic Gilles Kraemer described him, Diego Giacometti continuously played with the transparency of space. The pedestal protects the furniture, holds it at a distance, and, through the reflection on its polished surface, reveals the structure of the piece. Opposite it, a leather bench, simply placed, allows one to wait comfortably.
Above, two reception areas, divided and subdivided, must recover, within the diversity of their arrangement, the unity that is sought. Understanding the contributions, the touches added in furniture, lighting, or painted surfaces as elements that either highlight or contrast with the delicacy of Giacometti's work.
Associating Gio Ponti, from Milan, and Hannes Wettstein, born in Ticino, is no accident. This geographical connection was part of Giacometti's original cultural world. Thus, in combination or in opposition, more powerful pieces of furniture reappear, primarily expressing comfort. Graceful lamps, insect-like legs, or simple spheres create lighting that suspends itself, never imposing on the space but instead offering its full readability.
Furniture, then, needs a frame, a stage backdrop. Walls and ceilings must restore to the mouldings their true definition, that of shadow play, by using clay-based paint and its depth, and by unifying the surfaces in a single tonal palette across all supports, which in no way prevents differentiating horizontal from vertical.
Fabrics play an important role in the perception of an atmosphere. Carpets and curtains, once again, bring together Northern Italy and German-speaking Switzerland, deploying noble materials such as linen, silk, and wool.
Switzerland, the Grisons, should nevertheless retain an identifiable presence, a trace, through a collective representation, possibly complemented and enriched by art photography, calling upon young or more established Swiss photographers. This would reveal, in contrast with the Parisian setting of the inhabited spaces, the strength of the mountains, the original world of the Giacometti.
Project Team : Sara Sampaio