Transformation d'un appartement
Genève









Transformation d'un appartementGenève Privé
Transformer un espace habitable, un espace à vivre, implique une attention très scrupuleuse.
Avant toute entreprise, avant même la moindre esquisse, il convient de poser toutes les questions qui appelleront des réponses, et surtout de bien les formuler.
Elles relèvent de deux ordres essentiels : la nature du lieu à considérer, à réinvestir, et les besoins singuliers, spécifiques, de son nouvel occupant.
Travailler à l’intérieur de l’existant suppose, si l’on en reconnaît la qualité, d’en accepter et d’en comprendre les caractéristiques principales. Transformer sans transfigurer, modifier sans dénaturer.
Refuser un simple transfert, c’est affirmer une volonté de changement. C’est rejeter une configuration spatiale déjà présente, un niveau de prestations déjà établi. C’est aussi revendiquer une adéquation de l’espace à sa propre personnalité, à des besoins intimement liés.
Un appartement ayant conservé, malgré quelques adaptations au fil du temps, les stigmates d’un mode de vie passé. Un lieu pensé pour valoriser la réception, la représentation, très peu pour donner une place à des espaces appelés aujourd’hui à dépasser leur simple fonction de service pour devenir, eux aussi, des espaces à vivre.
L’intervention ne doit pas nier les caractères fondamentaux du lieu, mais ajouter sans soustraire.
Il s’agit d’opérer des choix, de définir des priorités afin de prélever les mètres carrés nécessaires sans bouleverser les principes directeurs du plan.
Éviter de compartimenter, d’éclater, de découper.
Mais plutôt insérer, regrouper, compacter, ajouter, relier, ordonner.
Faire de ce lieu non seulement un nouvel espace, mais une nouvelle façon de le vivre.
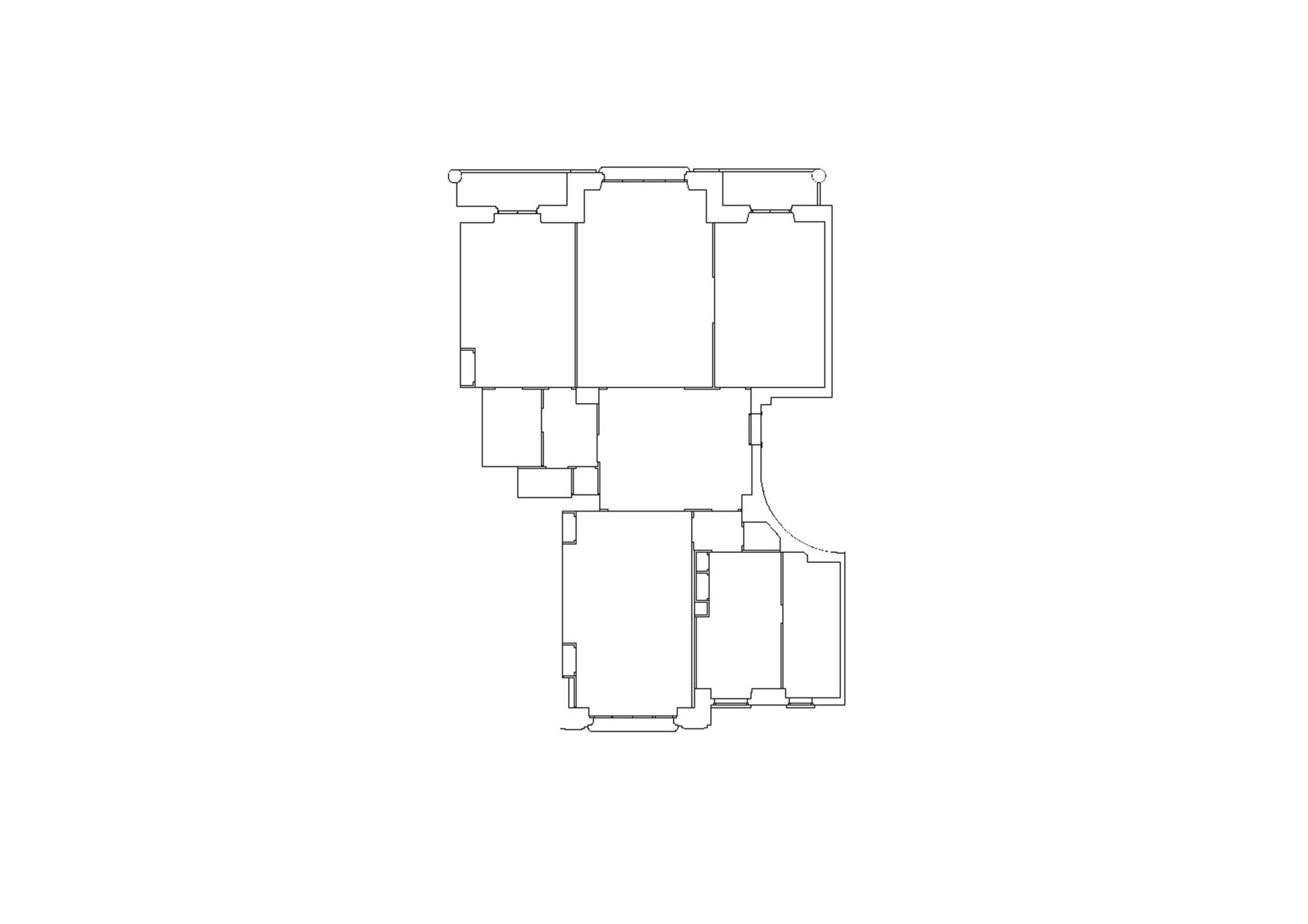
Un appartement au dernier étage, avec vue sur le lac. Un appartement pensé comme une suite d’hôtel, offrant la possibilité d’être relié, si besoin, à l’appartement du dessous.
Deux pièces généreuses séparées par un couloir-dressing. Un grand cadrage traversant permet, depuis la chambre, de voir le lac, et laisse pénétrer jusque dans le séjour la lumière du matin.
Un jeu de plafonds exploite la pente du toit sans s’y soumettre, créant ainsi des volumes, des vues et des circulations singulières.
Pour libérer totalement l’espace, la salle de bain, les sanitaires et le dressing principal, ainsi qu’une série de meubles encastrés, sont intégrés dans l’épaisseur des murs : le séjour comprend une bibliothèque, un bureau et un bar ; la chambre, une série de rangements et une grande coiffeuse.
Trois terrasses distinctes, traitées selon leur orientation : un deck en frêne rétifié face au lac, un jardin de galets côté sud, un mur de bambous pour le soleil levant.
Tout le mobilier en palissandre, toutes les poignées en cuir ou en laiton brossé ont été dessinés par l’agence.
avec Pierre Bouvier architecte
Transforming a livable space, a space to inhabit, requires the utmost attention.
Before any undertaking, before even the slightest sketch, it is essential to ask all the questions that will demand answers, and above all to formulate them correctly.
These questions fall into two essential categories: the nature of the space to be considered, to be reinvested, and the unique, specific needs of its new occupant.
Working within an existing structure implies, if its quality is acknowledged, accepting and understanding its principal characteristics. To transform without transfiguring, to modify without denaturing.
Rejecting a simple transfer means asserting a desire for change. It means refusing a pre-existing spatial configuration, an already operational level of features. It is also about affirming one’s difference and claiming a space that aligns with one’s personality and deeply connected needs.
An apartment that, despite some adaptations over time, has retained the traces of a past way of life. A space designed to emphasize reception and representation, with little regard for areas that now aspire to go beyond mere service functions and become true living spaces.
The intervention must not negate the fundamental qualities of the space, but must add without taking away.
It involves making choices, defining priorities in order to claim the required square meters without upsetting the guiding principles of the layout.
Avoid compartmentalizing, scattering, segmenting.
Instead, insert, group, compact, add, connect, organize.
To turn this space not just into a new environment, but into a new way of inhabiting it.
A top-floor apartment, with a view of the lake. An apartment conceived like a hotel suite, offering the option of being connected, if needed, to the apartment below.
Two generous rooms separated by a corridor-dressing area. A wide through-frame offers a view of the lake from the bedroom, and allows morning light to flow into the living room.
A play of ceilings makes use of the sloped roof without conforming to it, creating distinctive volumes, views, and movement through the space.
To completely free up the interior, the bathroom, toilets, and main dressing area, as well as a series of built-in furnishings, are all integrated into the thickness of the walls: the living room includes a library, a desk, and a bar; the bedroom, a set of storage units and a large dressing table.
Three distinct terraces, treated according to their orientation: a thermally treated ash deck facing the lake, a pebble garden to the south, and a bamboo wall for the rising sun.
All rosewood furniture, all leather or brushed brass handles were designed by the agency.
with Pierre Bouvier architect